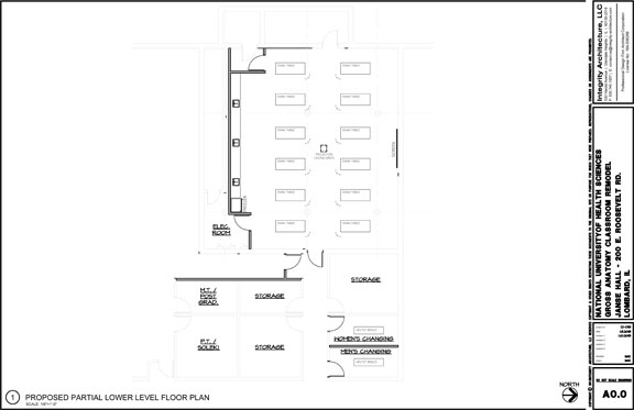
This summer, a new multi-purpose laboratory will be unveiled for students in room L34 in the lower level of Janse Hall. The new lab will replace the old phlebotomy lab in L99.
“The new lab is intended for courses which use either needles, hydrotherapy, or electrical equipment, such as acupuncture, phlebotomy and physiological therapeutics,” says Dr. Robert Shiel, chair of clinical sciences at National University. “This covers several courses in every program, including DC, ND, MT, acupuncture and oriental medicine, and several post-graduate classes.”

The new lab will have 11 workstations, with privacy curtains for venipuncture and practice of treatment modalities. There will be a 70-inch flat screen monitor mounted on the wall for visual instruction. The floor plan will allow an instructor to monitor all student workstations and remain accessible for students who need help. The project will also consolidate and streamline the storage of lab equipment now scattered among multiple laboratories.
In addition to new plumbing fixtures, the room will feature electrical supply lines and outlets that can safely accommodate the
high demands of courses that require multiple electronic modalities and appliances. Previously, L34 was unused space housing old research files and equipment. That means the entire laboratory has been re-constructed from the top down, boasting all new walls, floors, ceiling and fixtures.
“Finishing this new laboratory before the summer trimester will allow us to close down the old phlebotomy lab,” says Ron Mensching, vice president of business services at NUHS. “This is key, because later in 2013 we hope to begin new construction to renovate the main floor anatomy laboratory and restrooms. That project will require removing the old concrete bleachers in the anatomy lab, which will require changes to the ceiling of the old phlebotomy lab located directly underneath.”
The new lab in L34 is another example of the university’s ongoing expansion and renovation of classrooms and labs to keep abreast of advances in technology and to accommodate its expanding programs. “The new lab will provide more options and a better learning environment for students in the clinical sciences,” says Dr. Shiel.